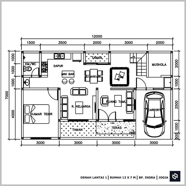
Berandadesain rumah minimalis 2021 Desain Rumah 2 lantai 12 x 7 m byDunia Arsitekture -September 27, 2021 0 Desain Rumah 2 lantai 12 x 7 m
Posting Komentar