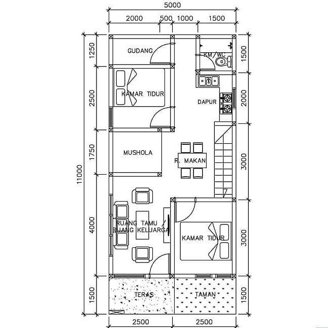
Berandadesain rumah minimalis 2021 desain rumah minimalis 2021 5 x 9 m2 byDunia Arsitekture -September 13, 2021 0 Desain Rumah 5 x 9 m2
Posting Komentar